8943 Bocfölde
Ingatlan sorszáma: 1765
643 519 Ft / m2
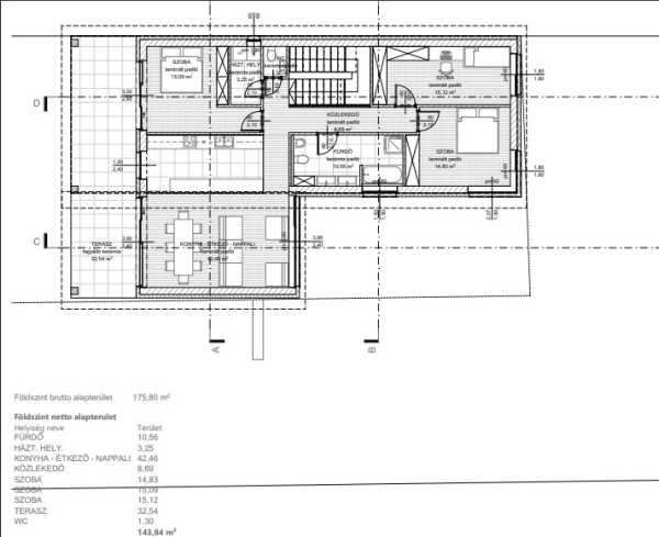
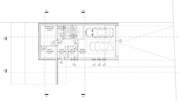
Modern, energiahatékony és igényes kivitelezésű otthon, amely 2026 júniusától költözhető, és a zalai dombság lenyűgöző panorámáját kínálja. A környék rendezett, igényes házakkal beépített, kiváló lakókörnyezet - pár percre Zalaegerszegtől. Műszaki tartalom 30 cm-es tégla falazat + 10 cm homlokzati hőszigetelés Cseréptető 3 rétegű, 6 légkamrás prémium külső nyílászárók Több ponton záródó biztonsági bejárati ajtó 30 cm kőzetgyapot szigetelés a födémen Hőszivattyús padlófűtés – alacsony rezsi, modern technológia Földszint 3 hálószoba Amerikai konyhás nappali 42 m²-en - a családi rendezvények színhelye Fürdőszoba Külön WC Háztartási helyiség 35 m²-es terasz páratlan kilátással a zalai dombságra Pinceszint Tágas dupla garázs Kazánház Több tárolóhelyiség Fürdő/WC Főbb adatok: Telekméret: 1211 m² Bruttó alapterület: 275 m² Nettó alapterület: 216 m² Fűtött lakótér: 146 m² A burkolatok,falszínek választhatók, így saját stílusodra formálhatod az otthon végső megjelenését! Ár: 139.000.000 Ft – kulcsrakész állapot! Ez az ingatlan ideális választás azoknak, akik természetközeli, rendezett környezetben keresnek modern, időtálló otthont – mégis könnyű elérhetőséggel Zalaegerszeghez. Ha szeretnéd megtekinteni, vagy további információra van szükséged, írj bátran!
Lépjen velünk kapcsolatba!
Magyar Eszter Judit
The Happy Home
A partner további hirdetései
Kapcsolatfelvételhez kattintson
A tétel adatlapján feltüntetett leírások a rendelkezésre álló információink alapján készültek. Az eszközök működőképességét, rejtett hibáit nem vizsgáltuk, azokról nincs tudomásunk. Kérjük, hogy licitálás előtt személyesen is tekintsék meg a megvásárolni kívánt tételeket, mert utólag nem tudunk reklamációt elfogadni. A szállítási és bontási költségek a vásárlót terhelik. A szállítást akkor lehet megkezdeni, ha az eladó az erre vonatkozó engedélyt megadta. A leütési ár nem tartalmazza az ÁFÁ-t és a vásárlói felárat.