8473 Gyepükaján
Ingatlan sorszáma: 7563
440 000 Ft / m2
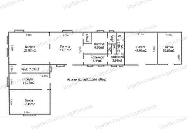
Az Ingatlan Presszó eladásra kínál egy több lehetőséget rejtő családi házat Gyepükajánban. Az Ingatlan Presszó által kínált gyepükajáni családi ház jellemzői: - az ingatlan 125 m2 alapterületű, a hozzá tartotó telek 1166 m2 (sarok telkes ingatlan, azaz egyik oldalról nincs szomszéd) - statikailag rendben van az épület, de energetikai korszerűsítése ajánlott - falazata kő és tégla - tető fedése cserép, szerkezete fa, állapota kiváló (kb 15-20 éves lehet) - eredeti- nyílászárók,- burkolatok,- vezetékek - 3x10 Ah nappali és 1x20 Ah éjszakai áram - a tetőtér (194 m2) beépíthető, 1 méteres térdfal, beton födém - fűtése jelenleg nincs az ingatlannak, korábban lemezkályha, és kandalló volt - ideális nagy családosoknak - kettő külön bejáratúnak is kilakatható, akár két generációnak (két családnak) is megfelelő tud lenni Kiváló befektetési lehetőség, akár vendégház üzemeltetésére is! Amennyiben az Ingatlan Presszó által kínált családi ház, vagy bármely kínálatunkban található ingatlan felkeltette érdeklődését, hívjon bizalommal a megadott telefonszámon. Irodánk szakember ajánlásai igény esetén: ügyvéd, energetikai tanúsítvány, hitelügyintézés, értékbecslés, statikus, földmérő, építészmérnök, belsőépítész, villanyszerelő, víz-, gáz-, központi fűtés szerelő, kőműves, burkoló... Továbbiakban keresek eladó vagy kiadó családi házat-, lakást-, nyaralót-, gazdasági épületet-, raktárt-, csarnokot,- telephelyet,- építési telket-, zártkertet-, külterületet-, szántót-, legelőt-, erdőt, akár még tulajdoni hányadot is ügyfeleim részére, Veszprém vármegyében, Sümeg- és Tapolca környékén, valamint Balaton-felvidéken, Káli-medencében, Művészetek Völgyében, Balatonederics-Zánka között. Köszönettel, Bódis Péter ingatlanértékesítő Ingatlan Presszó Térjen be hozzánk egy ingatlanra!
Lépjen velünk kapcsolatba!
Bódis Péter
Ingatlan Presszó ingatlaniroda
A partner további hirdetései
Kapcsolatfelvételhez kattintson
A tétel adatlapján feltüntetett leírások a rendelkezésre álló információink alapján készültek. Az eszközök működőképességét, rejtett hibáit nem vizsgáltuk, azokról nincs tudomásunk. Kérjük, hogy licitálás előtt személyesen is tekintsék meg a megvásárolni kívánt tételeket, mert utólag nem tudunk reklamációt elfogadni. A szállítási és bontási költségek a vásárlót terhelik. A szállítást akkor lehet megkezdeni, ha az eladó az erre vonatkozó engedélyt megadta. A leütési ár nem tartalmazza az ÁFÁ-t és a vásárlói felárat.