9545 Jánosháza
Ingatlan sorszáma: 7546
94 340 Ft / m2
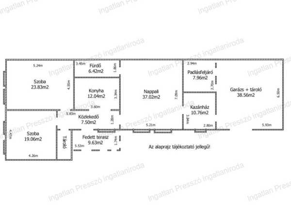
Nappali + 2 szobás családi ház eladó Jánosházán, csendes mellékutcában! Az Ingatlan Presszó eladásra kínálja a felújítandó állapotú CSALÁDI HÁZAT JÁNOSHÁZÁN. Az Ingatlan Presszó által kínált felújítandó állapotú jánosházi családi ház jellemzői: - a jánosházi családi ház 106 m2, a hozzá tartozó telek 1353 m2 - az ingatlan felújításra szorul (villanyhálózat cseréje, bővítése ajánlott) - 2 külön nyíló tágas szoba és nappali ami akár szobának is használható - központi vegyes tüzelésű kazán - műanyag ablakok, hőszigetelt üveg - villany: 1x16 Ah, alumínium vezetékek -melegvízet gázbojler szolgáltatja -tető boritása pala, szerkezetileg még jó - az ingatlanhoz fedett kiülös terasz (9.63 m2), és tároló/garázs ( 38.56m2) is tartozik - az udvaron ásott kút található, benne vízzel - csendes környék, barátságos szomszédok - a sárvári és a celldömölki gyógyfürdő 20-25 perces autóútra található, mesteri fürdő is kb.10-15 perc csak -Ideális választás lehet családok részére. A településen óvoda, általános iskola, vasútállomás is megtalálható, busz közlekedés is van. Amennyiben az Ingatlan Presszó által kínált családi ház, vagy bármely kínálatunkban található ingatlan felkeltette érdeklődését, hívjon bizalommal a megadott telefonszámon. Irodánk szakember ajánlásai igény esetén: ügyvéd, energetikai tanúsítvány, hitelügyintézés, értékbecslés, statikus, földmérő, építészmérnök, belsőépítész, villanyszerelő, víz-, gáz-, központi fűtés szerelő, kőműves, burkoló stb. Továbbiakban keresek eladó vagy kiadó családi házat-, lakást-, nyaralót-, gazdasági épületet-, raktárt-, csarnokot,- telephelyet,- építési telket-, zártkertet-, külterületet-, szántót-, legelőt-, erdőt, akár még tulajdoni hányadot is ügyfeleim részére, Veszprém vármegyében, Sümeg- és Tapolca környékén, valamint Balaton-felvidéken, Káli-medencében, Művészetek Völgyében, Balatonederics-Zánka között. Köszönettel, Bódis Péter ingatlanértékesítő Ingatlan Presszó Térjen be hozzánk egy ingatlanra!
Lépjen velünk kapcsolatba!
Bódis Péter
Ingatlan Presszó ingatlaniroda
A partner további hirdetései
Kapcsolatfelvételhez kattintson
A tétel adatlapján feltüntetett leírások a rendelkezésre álló információink alapján készültek. Az eszközök működőképességét, rejtett hibáit nem vizsgáltuk, azokról nincs tudomásunk. Kérjük, hogy licitálás előtt személyesen is tekintsék meg a megvásárolni kívánt tételeket, mert utólag nem tudunk reklamációt elfogadni. A szállítási és bontási költségek a vásárlót terhelik. A szállítást akkor lehet megkezdeni, ha az eladó az erre vonatkozó engedélyt megadta. A leütési ár nem tartalmazza az ÁFÁ-t és a vásárlói felárat.