8312 Balatonederics
Ingatlan sorszáma: 7527
866 942 Ft / m2
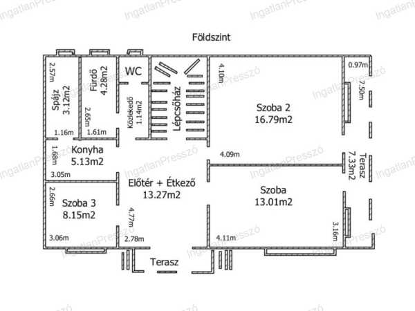
Az Ingatlan Presszó eladásra kínál kiváló állapotú BALATONEDERICSI CSALÁDI HÁZAT. Az Ingatlan Presszó által kínált eladó modern BALATONEDERICSI CSALÁDI HÁZ jellemzői: - Veszprém vármegye, Balaton Északi part, Balatonederics egyik csendes, zöldövezeti utcájában található - a 121 m2-es családi ház egy 901 m2 -es telken helyezkedik el - az épület 2019-ben felújításon esett át, anyaga tégla. - fűtése: cirkó kazán - a lakóház két szintes - az előtérből/étkezőből nyílik 3 szoba, fürdőszoba (zuhanyzóval felszerelt), konyha, wc és a lépcsőház - tetőtérben 2 szoba és 1 fürdőszoba található - belső elrendezése és tágas terei pároknak, családosoknak is elég helyet biztosítanak az együttéléshez - az ingatlanhoz gondozott telek tartozik - kiváló lehetőség pihenésre, kikapcsolódásra - klíma került felszerelésre 2024-ben Amennyiben az Ingatlan Presszó által kínált családi ház, vagy bármely kínálatunkban található ingatlan felkeltette érdeklődését, hívjon bizalommal a megadott telefonszámon. Irodánk szakember ajánlásai igény esetén: ügyvéd, energetikai tanúsítvány, hitelügyintézés, értékbecslés, statikus, földmérő, építészmérnök, belsőépítész, villanyszerelő, víz-, gáz-, központi fűtés szerelő, kőműves, burkoló... Továbbiakban keresek eladó vagy kiadó családi házat-, lakást-, nyaralót-, gazdasági épületet-, raktárt-, csarnokot,- telephelyet,- építési telket-, zártkertet-, külterületet-, szántót-, legelőt-, erdőt, akár még tulajdoni hányadot is ügyfeleim részére, Veszprém vármegyében, Sümeg- és Tapolca környékén, valamint Balaton-felvidéken, Káli-medencében, Művészetek Völgyében, Balatonederics-Zánka között. Köszönettel, Bódis Péter ingatlanértékesítő Ingatlan Presszó Térjen be hozzánk egy ingatlanra!
Lépjen velünk kapcsolatba!
Bódis Péter
Ingatlan Presszó ingatlaniroda
A partner további hirdetései
Kapcsolatfelvételhez kattintson
A tétel adatlapján feltüntetett leírások a rendelkezésre álló információink alapján készültek. Az eszközök működőképességét, rejtett hibáit nem vizsgáltuk, azokról nincs tudomásunk. Kérjük, hogy licitálás előtt személyesen is tekintsék meg a megvásárolni kívánt tételeket, mert utólag nem tudunk reklamációt elfogadni. A szállítási és bontási költségek a vásárlót terhelik. A szállítást akkor lehet megkezdeni, ha az eladó az erre vonatkozó engedélyt megadta. A leütési ár nem tartalmazza az ÁFÁ-t és a vásárlói felárat.